25坪|将来も可変!インナーガレージとゆるやかにつながる3LDK平屋プラン
主な特長
25坪に「人生を楽しむ」要素を凝縮した高性能の平屋住宅。
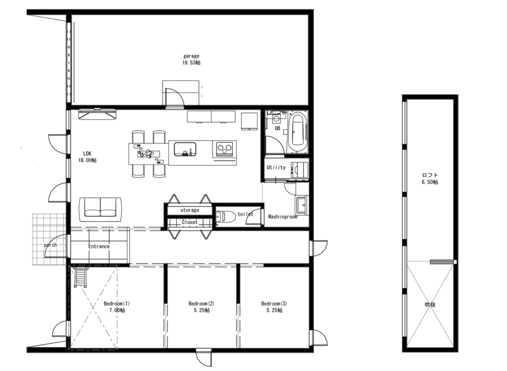
約19帖のインナーガレージが愛車や趣味の作業場、便利な荷物置き場として活躍。家と車が一体となった生活を叶えてくれます。
18帖のLDKは、吹き抜けの連窓から光が降り注ぐロフトと繋がり、開放感あふれる空間に。3つの居室はあえてゆるやかな間仕切りとし、家族の成長に合わせてフレキシブルに変化します。
さらに、スーパーウォール工法による「夏涼しく冬暖かい」快適・安心な高気密・高断熱性能が、家族の健康と豊かな暮らしを長く支えます。
-
平面プラン
-
立面プラン-南側と北側
南側は、愛車と一体になるインナーガレージと、明るくプライバシーを守るロフトの連窓が個性を際立たせます。
一方、北側は通路の突き当たりや居室の窓が整然と配置され、生活空間の静けさとプライベート性を表現。
南北で表情を変える機能的かつ洗練されたモダンデザインが、この平屋の暮らしへのこだわりを伝えています。 -
立面プラン-東側と西側
片流れ屋根の美しい傾斜が最も際立つのが、この東西面です。
東側には、居室用の窓がひとつ配置されているのみ。静かで落ち着いた表情を見せ、朝の柔らかな光を取り込みます。
一方、西側はインナーガレージに面しているため、窓をあえて設けず壁面で構成されています。このシンプルな壁面が、建物のシャープなシルエットとモダンな印象を一層引き立てるデザインとなっています。
物件概要
- 1F床面積
- 82.81㎡(25.05坪)
- 延床面積
- 82.81㎡(25.05坪)
- 建ぺい率
- 48.19%
- 規模
- 木造 平屋建て
- 間取り
- 3LDK+インナーガレージ+ロフト
- 仕様
- TRETTIO VALO 平屋
SW(スーパーウォール)工法
関連記事













